Dom jednorodzinny, Sandomierz

data: 2013

lokalizacja: Sandomierz, Polska

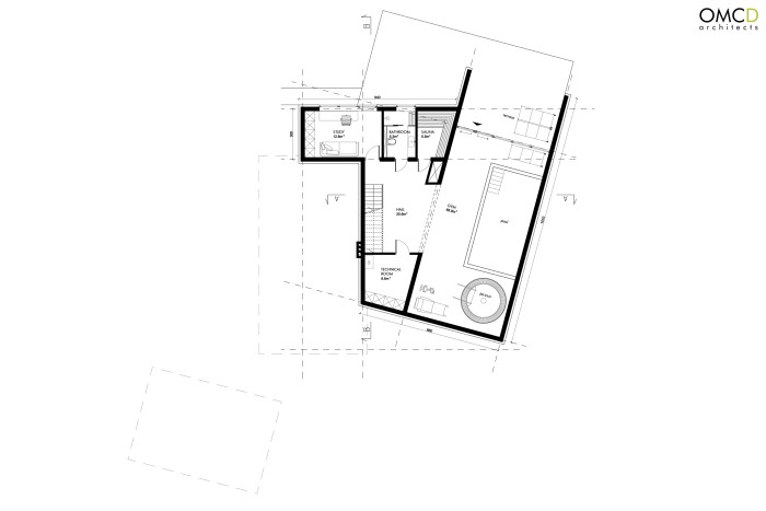
Projekt domu powstał na zlecenie 3-osobowej rodziny. Poza potrzebami użytkowników oraz miejscowym planem zagospodarowania przestrzennego najistotniejszy wpływ na ukształtowanie budynku miała topografia działki. Część budynku wtopiono w skarpę przez co dom od strony ulicy wydaje się być parterowy, natomiast otwiera się tarasami na otaczające wąwozy i stawy.

Kolejnym czynnikiem kształtującym bryłę budynku była jego lokalizacja w obrębie miasta Sandomierz, stąd nawiązanie dwuspadowym dachem oraz ceramiczną cegłą i dachówką do regionalnej architektury.

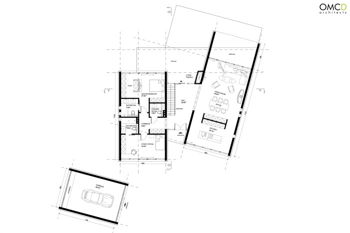
Ideą ukształtowania bryły budynku było zlokalizowanie poszczególnych stref (dziennej, sypialnianej oraz garażu) w oddzielnych segmentach, połączonych szklanym łącznikiem stanowiącym komunikację oraz uzupełnionych o część rekreacyjną w kondygnacji wbudowanej w skarpę.

Pokaż